Hold igen med tilkøbene
Budgettet kan hurtigt skride, hvis man ikke fra starten har tænkt over hvad der er nice-to-have og need-to-have.
Hvordan forener man drømmen om at bygge et hus med flere bæredygtighedstiltag, når man har et begrænset boligbudget? Søren Karmisholt og familien var fra start indstillet på at deres kommende hus skulle bygges med fokus på bæredygtighed. Familien formåede at bygge en villa med en række bæredygtighedstiltag indenfor deres budget. Samtidig gjorde de sig en række vigtige erfaringer undervejs i processen.
Sydøst for Odder ligger en villa, som er blandt de første DGNB Villa certificerede huse i Danmark. Ejerne er Søren Karmisholt og hans hustru, der med deres baggrunde som hhv. bygningskonstruktør og biolog havde både viden og en klar vision for projektet:
”Vi har hele tiden været fast besluttede på at stille os kritiske overfor ”plejer”. Derfor gav vi os selv den udfordring at bygge så bæredygtigt som muligt ud fra de betingelser, som byggebranchen tillod inden for vores budget”.
Med drømmen om at bygge en mere bæredygtig og økonomisk solid villa med fokus på arealeffektivitet, robusthed, biodiversitet og indeklima i den ene hånd og DGNB-manualen for større nybyggeri i den anden, kastede parret sig ud i at bygge en villa, som adskilte sig fra det typiske enfamiliehus.
Der gik dog ikke længe før parret blev bekræftet i, at det kræver benhård prioritering at forene bæredygtighedstiltag med et stramt budget:
“Med et budget på 3. mio. kr. betød det blandt andet at vi valgte en entreprenør der tilbød medbyg* på projektet. På den måde kunne vi både holde budgettet og samtidig sætte vores eget præg”
Parret endte med selv at stå for byggemodning, sandpude, inventar og haveanlæg. Det betød blandt andet at de sparede penge på byggemodningen, fordi en lokal maskinstation ønskede at overtage overskudsjorden. Derudover byggede de selv deres køkken, hvilket gav store besparelser i budgettet. Haveanlægget gav også anledning til gode besparelser, da parret selv anlagde terrasse og parkeringspladser, samt stod for al beplantning heraf græsplæne, køkkenhave og vildhave bestående af mere end 100 hjemmehørende træer og buske.
”Vi gik ind i projektet uden at være bange for at tage atypiske valg, fx materialevalg, indretning og forbrug. Vi drømte om at pladsoptimere og designe en plan, der passede til netop vores families behov”
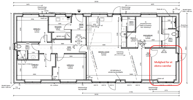
Derfor prioriterede de et fleksibelt opholdsrum, tre store børneværelser og muligheden for i fremtiden at etablere et ekstra værelse i forlængelse af stuen.

Udover størrelsen på huset, har parret også haft fokus på pladsoptimering fx i form af integreret pusleplads på badeværelset, masser af opbevaringsplads på værelserne og i køkkenalrummet. Huset er ligeledes bygget ud fra en simpel bygningsgeometri dvs. et længehus. Det betyder blandt andet, at huset har et minimalt ressourceforbrug og at man rent byggeteknisk minimerer risikoen for skader. Derudover har de også sparet penge på den efterfølgende drift fx opvarmning af huset og det udvendige vedligehold.
(*medbyg betyder at man selv står for dele af entreprisen)
Budgettet kan hurtigt skride, hvis man ikke fra starten har tænkt over hvad der er nice-to-have og need-to-have.
Budgettet er lettere at holde, hvis man tidligt i processen kontakter en DGNB-konsulent, der kan guide en i den rigtige retning. Netop fordi man allerede i de tidlige skitsefaser får fastlagt, hvilke bæredygtighedsaspekter man ønsker at prioritere.
Du vil ofte opleve at entreprenør og leverandør har et fast materialekatalog. Det betyder dog ikke, at der ikke kan være produkter som både er billigere og mere bæredygtige. Spørg derfor altid din rådgiver, entreprenør eller leverandør om der findes alternative produkter og løsninger.
Søren stod selv for dokumentationsindsamling til DGNB Villa-certificeringen og heraf dialogen med Rådet for Bæredygtigt Byggeri, hvilket derfor ikke er indregnet i udgifterne.
Samlede udgifter ekskl. finansieringsudgifter og tinglysning:
| Grundkøb | 395.000 kr. |
| Anlæg hus | 2.000.000 kr. |
|
Medbyg |
|
| Sandpude | 350.000 kr. |
| Inventar | 100.000 kr. |
| Byggemodning | 60.000 kr. |
| Haveanlæg | 60.000 kr. |
|
Samlet pris |
2.965.000 kr. |
DGNB Villa er en certificeringsordning målrettet private boliger. Certificeringen hjælper den private boligejer med at træffe en række valg ift. bæredygtighedstiltag i boligen. DGNB Villa kan også anvendes som et redskab til at bygge mere bæredygtigt på budget, fordi du baseret på en række kriterier kan vælge hvor du ønsker at lægge dit bæredygtighedsfokus.
Byggecentrum er et inspirationsunivers til dig, der skal bygge nyt, renovere eller bare lade dig inspirere af de nyeste produkter og designs til boligen og haven. I Byggecentrum Middelfart finder du det hele. Du kan gå på opdagelse blandt over 140 af Danmarks førende brands inden for bolig og byggeri. Derudover kan du opleve en lang række indrettede fritidshuse, hytter og pavilloner.
Byggecentrum har åbent alle hverdage og weekender fra kl. 10 til 17.